Elegante appartamento in zona Sassi, caratterizzato da spazi generosi distribuiti su due livelli.
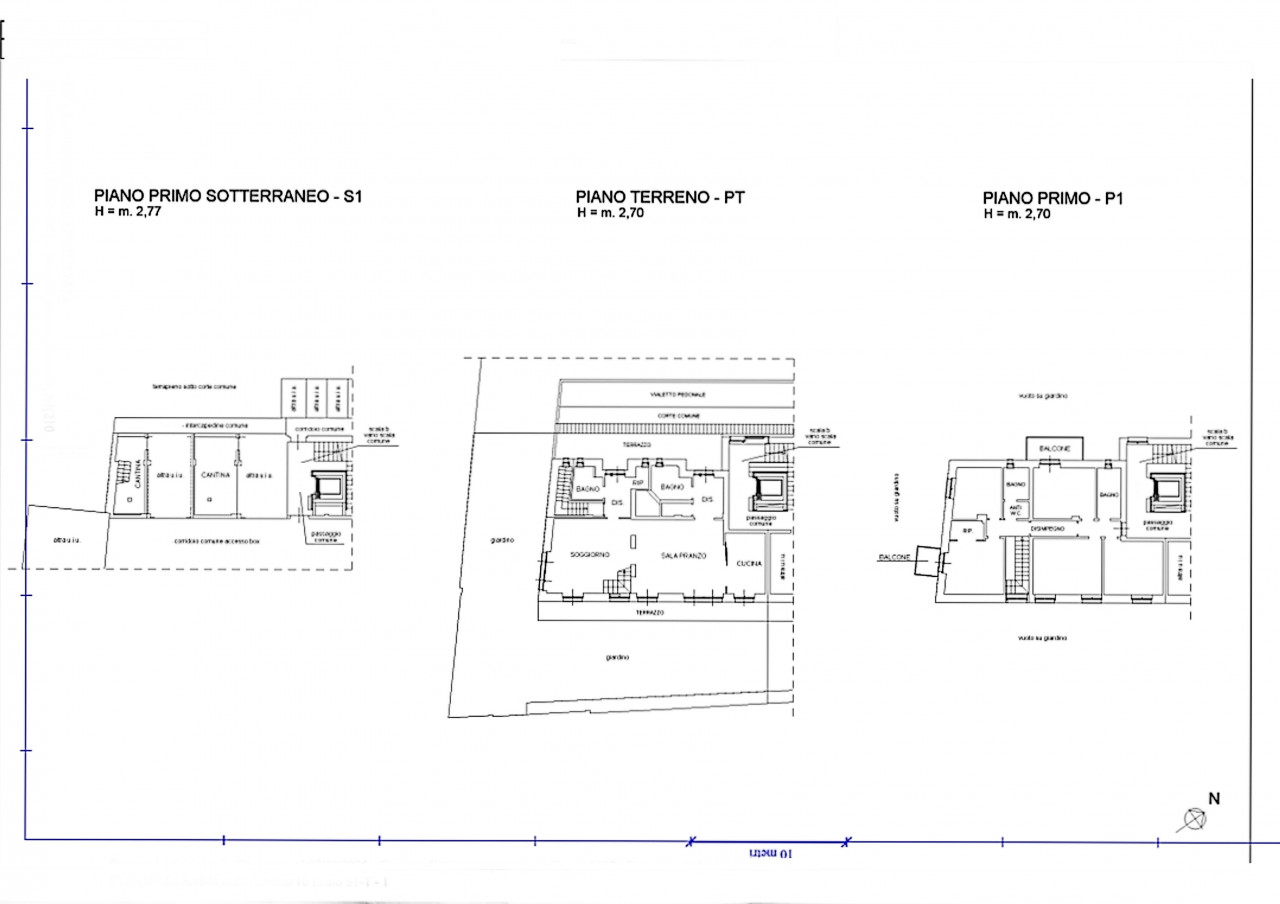
Al piano terra si trovano salone con cucina e sala da pranzo, ripostiglio/dispensa e due bagni, di cui uno adibito a lavanderia; una scala interna conduce al primo piano, dove la zona notte ospita quattro camere e altri due bagni.
L’immobile è dotato di riscaldamento autonomo e aria condizionata.
La proprietà comprende un ampio giardino con pavimentazione in lastra di cemento ghiaino lavato, ideale per momenti di relax e convivialità.
Completano la soluzione, al piano interrato, una cantina e due ampi box auto.
Proposta ideale per chi desidera un’abitazione di pregio in un contesto esclusivo e tranquillo, comoda ai principali servizi e ben collegata al centro di Torino e alla collina.
Le informazioni riportate nell'inserzione hanno carattere informativo e non costituiscono vincolo contrattuale.
Al piano terra si trovano salone con cucina e sala da pranzo, ripostiglio/dispensa e due bagni, di cui uno adibito a lavanderia; una scala interna conduce al primo piano, dove la zona notte ospita quattro camere e altri due bagni.
L’immobile è dotato di riscaldamento autonomo e aria condizionata.
La proprietà comprende un ampio giardino con pavimentazione in lastra di cemento ghiaino lavato, ideale per momenti di relax e convivialità.
Completano la soluzione, al piano interrato, una cantina e due ampi box auto.
Proposta ideale per chi desidera un’abitazione di pregio in un contesto esclusivo e tranquillo, comoda ai principali servizi e ben collegata al centro di Torino e alla collina.
Le informazioni riportate nell'inserzione hanno carattere informativo e non costituiscono vincolo contrattuale.
Mappa
Contattaci
INFORMAZIONI EXTRA
AMBIENTI
| Soggiorno | |
| Cucina | |
| Ripostigli | 1 |
| Terrazzi | 2 |
| Poggioli/balconi | 2 |
| Giardino | |
| Cantina | |
| Garage | 2 |
| Lavanderia |
LIVELLI & COMFORT
| Livelli | Piano terra , Primo piano |
| Aria condizionata | |
| Riscaldamento autonomo | |
| Ascensore | |
| Ingresso indipendente | |
| Numero accessi carrai | 1 |
| Numero portoni | 1 |
